Szeretjük a lépcsőket. És nem szeretjük azt, ha valaki egy lépcsőt csak simán leszól, és „lelépcsőzik”. Az egyetlen olyan tartószerkezet, ahol a vasbetont is mm pontossággal kótázzuk; készülhet kőből, fémből, fából, üvegből, vasbetonból, lehet fiatal vagy korosodó, és nem kell messze menni ahhoz, hogy igen kivételes, szemrevaló példányokat találjunk belőlük. A húzott karú lépcső egy fokkal talán még kényesebb is, mint a többi, ebből az egyik kedvencemet szeretném most megmutatni Nektek, hogy a tervezés során milyen fázisokon ment keresztül, és végül hogy nyerte el végleges formáját.
A szóban forgó tervezési feladat egy XII. kerületi társasház átalakítása volt. Bár maga az épület nem műemlék, a szomszédos épületekkel együtt városképileg védett épületegyüttesként van nyilvántartva, így elég sokat kellett izzadni a STUDIO Stisze - Szepesi János és Soós Timur - építészeinek, míg az építési hatóságon keresztül verekedték magukat, és mindenki elfogadta és jóváhagyta az elképzelésüket. Ennek az egyik hangsúlyos eleme a külső lépcsőház volt, és törekedtek arra, hogy a meglévő, régi ház tömegétől elkülönülve, funkcionálisan minden igényt kielégítve, építészetileg is vállalható forma szülessen.
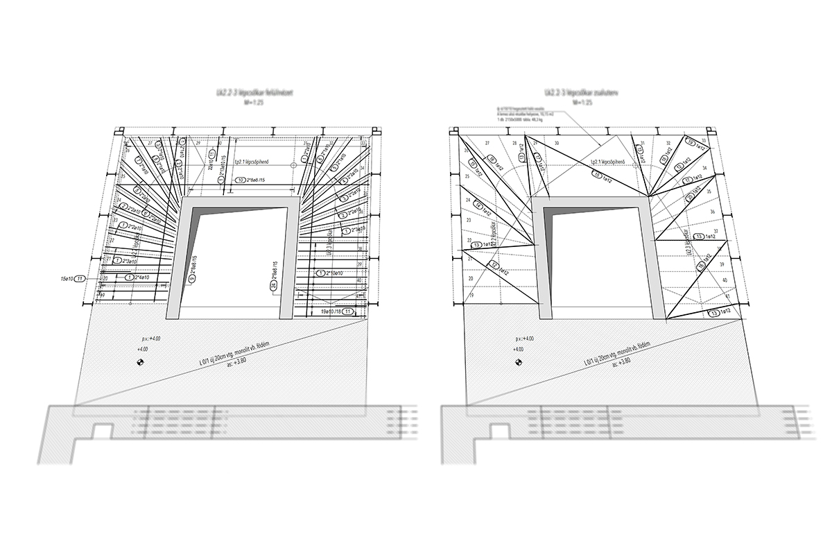
A feladat tartószerkezeti szempontból első ránézésre viszonylag egyszerűnek tűnt: középen adott egy vasbeton falakból álló liftmag, ezen kellett körbe kergetni egy vasbeton lépcsőt, amit kívülről acél oszlopok támogatnak, amik a külső üveg homlokzatot is fogadni tudják. Helyből persze nem sok van, így a lépcsőnek húzott karúnak kell lennie. Ha felülről ránézünk erre a szerkezetre, akkor egyszerűnek tűnik a menet: a 2m+sz=63-64cm szabályhoz igazodva a belépők és fellépők méretei egyértelműen adódnak, ahogyan a lépcsőpihenők síkjai is.
Már csak egy valamit kellett kitalálni, ez pedig a lépcsőkarok alsó felülete. Hogy ezt miért kell rendesen kitalálni, és mit akartunk elkerülni? Ezt a borzalmat, ami sajnos nem is annyira ritka látvány, és általában „ez csak egy lépcső” felkiáltással készül.

Ekkor merült fel az az ötlet, hogy egy ilyen kétszer görbült felület helyett jó volna olyan alsó felületet kialakítani, ami síkokkal jól határolható. És ha már sík, akkor legyen háromszög, mert három pont nem tévedhet, ellenben négy már igen. (Ismerjük a négylábú szék dilemmáját: ha háromlábú lenne, akkor nem tudna billegni, de ki ne szeretne eggyel több lábat, nem igaz?) Tehát osszuk fel háromszögekre, és az így adódó éltöréseket akár világításra is fel lehetne használni.
Az első nekifutásnál azért egyből feltűntek a buktatók: a helyenként vállalhatatlanul meghízó vagy elfogyó beton keresztmetszet, és fejvakarás, hogy ezt hogy lehet rajzilag emészthető formában is megmutatni. Így a lépcső felülnézet mellett, ahol a lépcsőfokokra szépen sorszámokkal lehet hivatkozni, készült egy olyan zsaluzási terv, ahol a háromszögek töréspontjait mutattuk meg alulról. A statikai váza innentől pedig egy kéttámaszú lemezre egyszerűsödik, melynek az alsó részére háromszög alaprajzú, felvastagodó betonréteg „csimpaszkodik”. A lépcső belső oldalán a vasbeton falra támaszkodik, ezeket zippzár vasakkal be lehet kötni a vasbeton falba, a külső oldalán pedig az acél pilléreket összekötő U szelvényre, amit a lépcsőkarba betonozunk.
És térjünk is vissza a vállalhatatlanul meghízó, vagy pont ellenkezőleg, elfogyó beton keresztmetszetekre, és a töréspontok vízszintes és függőleges pozíciójának finomhangolására. Nem maradt más hátra, mint egy nagy levegővétel után kirajzolni a lépcső kiterített nézeteit minden irányból, és a magassági pontokat a zsalutervre visszavezetni. A vb. falon a zippzárvasak egyen méretéhez, míg a külső oldalon az U szelvény bebetonozásához szükséges minimum beton keresztmetszethez kellett igazodni, és a háromszögek méretein és magassági pontjain úgy finom-hangolni, hogy egységes szerelvények minden pontban kellő betonfedést kapjanak. Mivel ez a szerkezet egy „lépcsőkar” alatt is elég vidám és mozgalmas formát mutat, ezért az U acélról és a zippzárvas elhelyezéséről is külön terv készült.
Akkor már csak egy kérdés maradt, mi legyen a síkból kilépő plusz betonnal, ami a kvázi kéttámaszú síklemezre rakódik? Mutassuk meg ezeket, és kerüljenek oda világító sávok. A led szalagok szerelvénye felé pozícionáló betonacélok kerülnek, amelyeket így a felső hálóhoz lehet rögzíteni. És mi legyen a zsaluzatban megjelenő vápa két oldalán? A pozícionáló betonacélhoz már lehet olyan formára vágott hegesztett betonacél hálót leszabni, amely egyben a háromszög éleit is kijelöli. Tehát a teherhordó szerkezet a kéttámaszú síklemez, a háromszögek hasa pedig csimpaszkodik, mint lajhármamán a kicsinye.
A végeredmény pedig egy olyan húzottkarú lépcső, ami egy látszó beton kígyóként tekereg a vasbeton liftmagon, a külső oldalán pedig egy árnyékolt, de nyitott és átszellőztetett üveghomlokzat határolja. Bonyolultnak tűnik? Talán igen, talán nem, de rengeteg párbeszéd és ötletelés végeredményeként végül egy olyan lépcsőt sikerült tervezni, ami építészetileg is vállalható, az adott helyen elfér, és kivitelezési szempontból sem lehetetlen küldetés. És a tartószerkezeti tervezés szépségét pontosan a fentebb leírt lépések teszik széppé és izgalmassá.
Ha felmerült benned a kérdés, hogy ha a „zöldmezős” része ilyen volt, akkor milyen lehetett a belső átalakítás, megnyugtatlak, hogy nem volt unalmas az sem. De ez már egy másik blogbejegyzés témája.